Kia Rio Manuals Rio Car Manuals
Technical Info

Kia Rio: Brake System / ABS(Anti-Lock Brake System)

Kia Rio 2017-2020 YB Service Manual / Brake System / ABS(Anti-Lock Brake System)
Components and components location
Components

1. ABS control module
2. Front wheel speed sensor
3. Rear wheel speed sensor

Description and operation
Description

This specification applies to HCU(Hydraulic Control Unit) and ECU(Electronic Control Unit) of the HECU.(Hydraulic and Electronic Control Unit)

This specification is for the wiring design and installation of ABS ECU.

This unit has the functions as follows.

Input of signal from the wheel speed sensors attached to each wheel.

Control of braking force.

Failsafe function.

Self diagnosis function.

Interface with the external diagnosis tester.

Installation Position : Engine Compartment

Brake tube length from Master cylinder port to HECU inlet port should be max. 1m

The position should not be close to the engine block and not lower than the wheel.

Operation

The ECU shall be put into operation by switching on the operating voltage (IGN).

On completion of the initialization phase, the ECU shall be ready for operation.

In the operating condition, the ECU shall be ready, within the specified limits (voltage and temperature), to process the signals offered by the various sensors and switches in accordance with the control algorithm defined by the software and to control the hydraulic and electrical actuators.

Wheel Sensor Signal Processing

The ECU shall receive wheel speed signal from the four active wheel sensors.

The wheel signals are converted to voltage signal by the signal conditioning circuit after receiving current signal from active wheel sensors and given as input to the MCU.

Solenoid Valve Control

When one side of the valve coil is connected to the positive voltage that is provided through the valve relay and the other side is connected to the ground by the semiconductor circuit, the solenoid valve goes into operation.

The electrical function of the coils are always monitored by the valve test pulse under normal operation conditions.

Voltage Limits

Overvoltage

When overvoltage is detected(above 16.8 V), the ECU switches off the valve relay and shuts down the system.

When voltage is returned to operating range, the system goes back to the normal condition after the initialization phase.

Undervoltage

In the event of undervoltage(below 9.3 V), ABS control shall be inhibited and the warning lamp shall be turned on.

When voltage is returned to operating range, the warning lamp is switched off and ECU returns to normal operating mode.

Pump Motor Checking

The ECU performs a pump motor test at a speed of 30km/h once after IGN is switched on.

Diagnostic Interface

Failures detected by the ECU are encoded on the ECU, stored in a EEPROM and read out by diagnostic equipment when the ignition switch is turned on.

The diagnosis interface can also be used for testing the ECU during production of the ECU and for actuating the HCU (Air-bleeding line or Roll and Brake Test line).

Warning Lamp Module

1.

ABS Warning Lamp

The active ABS warning lamp indicates the selftest and failure status of the ABS. The ABS warning lamp shall be on:

During the initialization phase after IGN ON. (continuously 3 seconds).

In the event of inhibition of ABS functions by failure.

During diagnostic mode.

When the ECU Connector is separated from ECU.

2.

EBD/Parking brake Warning Lamp

The active EBD warning lamp indicates the selftest and failure status of the EBD. However, in case the Parking Brake Switch is turned on, the EBD warning lamp is always turned on regardless of EBD functions.The EBD warning lamp shall be on:

During the initialization phase after IGN ON. (continuously 3 seconds).

When the Parking Brake Switch is ON or brake fluid level is low.

When the EBD function is out of order.

During diagnostic mode.

When the ECU Connector is separated from ECU.

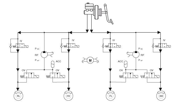
ABS Control
1.

Normal Braking without ABS


Inlet valve(IV)
Outlet valve(OV)
Return pump
Operation
Open
Close
OFF

  

IV : Inlet Valve

OV : Outlet Valve

RL : Rear left wheel

FR : Front right wheel

FL : Front left wheel

RR : Rear right wheel

RP : Return pump

2.

Decrease Mode


Inlet valve(IV)
Outlet valve(OV)
Return pump
Operation
Close
Open
ON(Motor speed control)

  

IV : Inlet Valve

OV : Outlet Valve

RL : Rear left wheel

FR : Front right wheel

FL : Front left wheel

RR : Rear right wheel

RP : Return pump

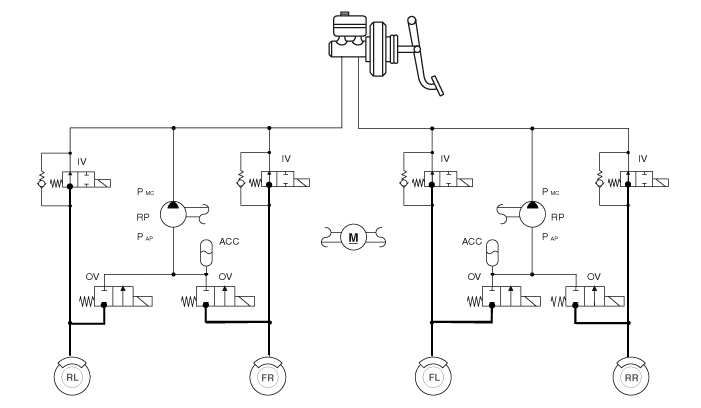
3.

Hold Mode


Inlet valve(IV)
Outlet valve(OV)
Return pump
Operation
Close
Close
ON(Motor speed control)

  

IV : Inlet Valve

OV : Outlet Valve

RL : Rear left wheel

FR : Front right wheel

FL : Front left wheel

RR : Rear right wheel

RP : Return pump

4.

Increase Mode


Inlet valve(IV)
Outlet valve(OV)
Return pump
Operation
Open
Close
ON(Motor speed control)

  

IV : Inlet Valve

OV : Outlet Valve

RL : Rear left wheel

FR : Front right wheel

FL : Front left wheel

RR : Rear right wheel

RP : Return pump

Schematic diagrams
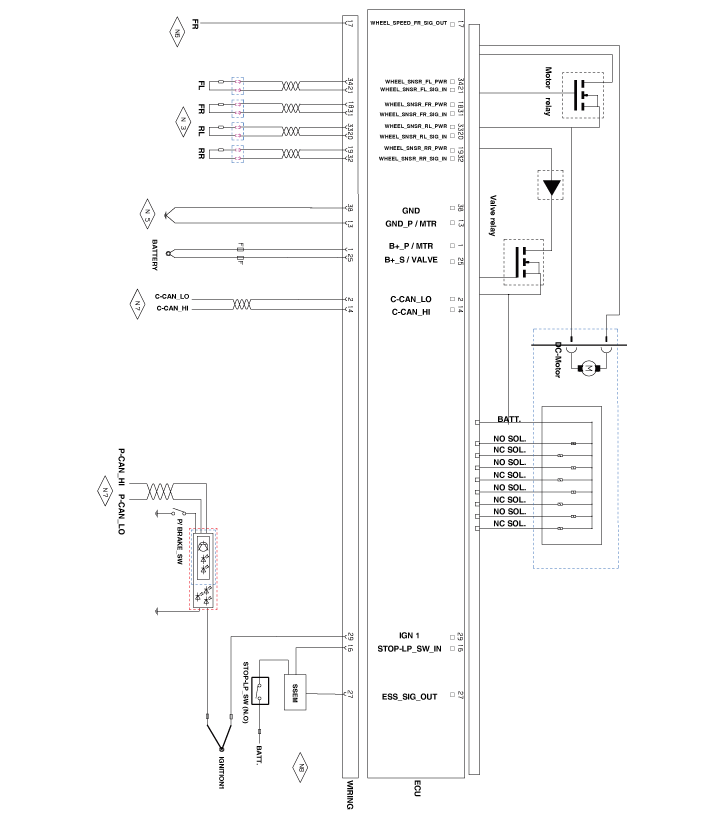
Circuit Diagram

Terminal Function

Pin No
Description
Current
Resistance
Remark
(AMPS)
(mΩ)
1
B+ PUMP MOTOR POWER
137(RUSH)
10

2
C-CAN Low
30 mA
250

13
GND_PUMP MOTOR GROUND
137(RUSH)
10

14
C-CAN High
30 mA
250

16
BRAKE LIGHT SWITCH
10 mA
250

17
WHEEL SPEED OUTPUT (FR)
16mA
250

18
WHEEL SPEED SENSOR POWER (FR)
30 mA
250

19
WHEEL SPEED SENSOR POWER (RR)
30 mA
250

20
WHEEL SPEED SENSOR SIGNAL GROUND (RL)
16.8 mA
250

21
WHEEL SPEED SENSOR SIGNAL GROUND (FL)
16.8 mA
250

25
BATTERTY(+) SOLENOID
40
10

27
ESS DRIVE SIGNAL
200mA
250

29
IGNITION1
50mA
60

31
WHEEL SPEED SENSOR SIGNAL GROUND (FR)
16.8mA
250

32
WHEEL SPEED SENSOR SIGNAL GROUND (RR)
16.8mA
250

33
WHEEL SPEED SENSOR POWER (RL)
30mA
250

34
WHEEL SPEED SENSOR POWER (FL)
30mA
250

38
GROUND
40
10


Parking Brake Assembly
Components and components location Components 1. Parking brake lever 2. Equalizer assembly 3. Rear parking brake cable Repair procedures ...
ABS Control Unit
Components and components location Components 1. ABS control module connector 2. ABS control module 3. ABS bracket Repair procedures Remo ...
Other information:

Kia Rio 2017-2020 YB Owners Manual: Important safety precautions


You will find many safety precautions and recommendations throughout this section, and throughout this manual. The safety precautions in this section are among the most important. Always wear your seat belt A seat belt is your best protection in all types of accidents. Air bags are designed ...

Kia Rio 2017-2020 YB Service Manual: Rear Seat


Components and components location Components 1. Rear seat cushion pad 2. Rear seat cushion covering 3. Rear seat back covering 4. Rear seat back pad 5. Rear seat back board 6. Rear seat back frame 7. Rear seat back bezel 8. Rear seat headre ...
Copyright © www.kiamanual.com 2020-2021